13208166786
双连顶帐篷(天空之镜)

双连顶帐篷(天空之镜)

主材:优质碳钢钢管(氟碳漆防锈处理)
外膜:PVDF优质膜材
内膜:PVC
墙体:双层中空玻璃
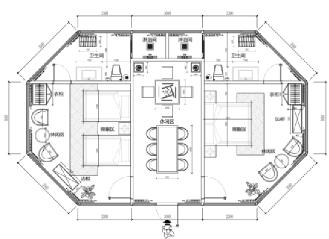
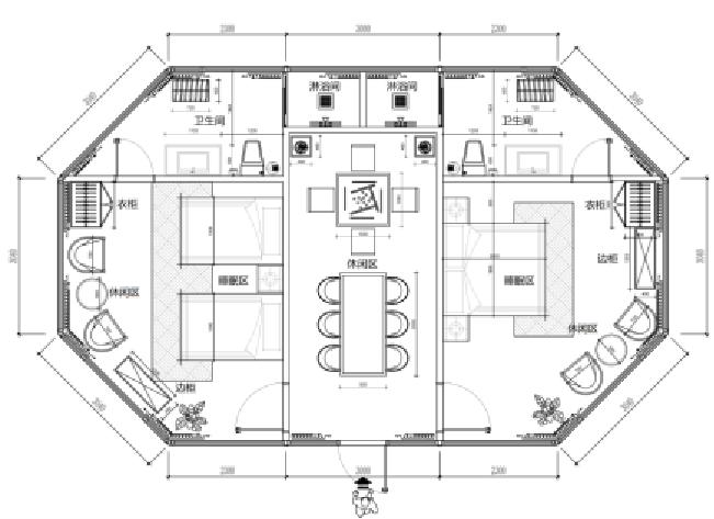
规格:12m*7.6m
套内面积:77㎡
投影面积:86.54㎡
抗风等级:10级以下

产品咨询
产品介绍

双连顶帐篷(天空之镜)

双连顶帐篷(天空之镜)

双连顶帐篷(天空之镜)

双连顶帐篷(天空之镜)

产品咨询